Custom Residential Build – Owner-Builder Collaboration

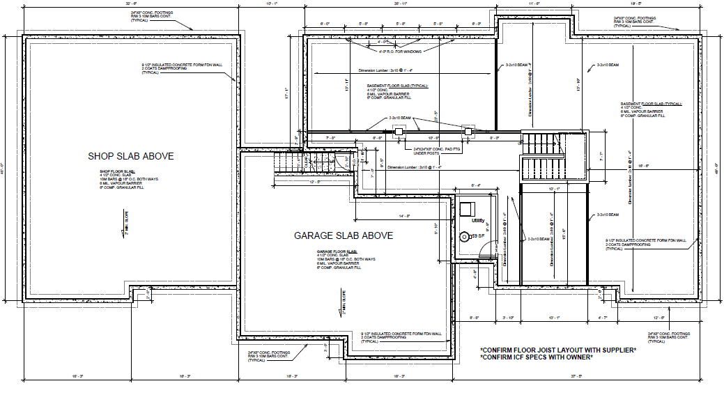
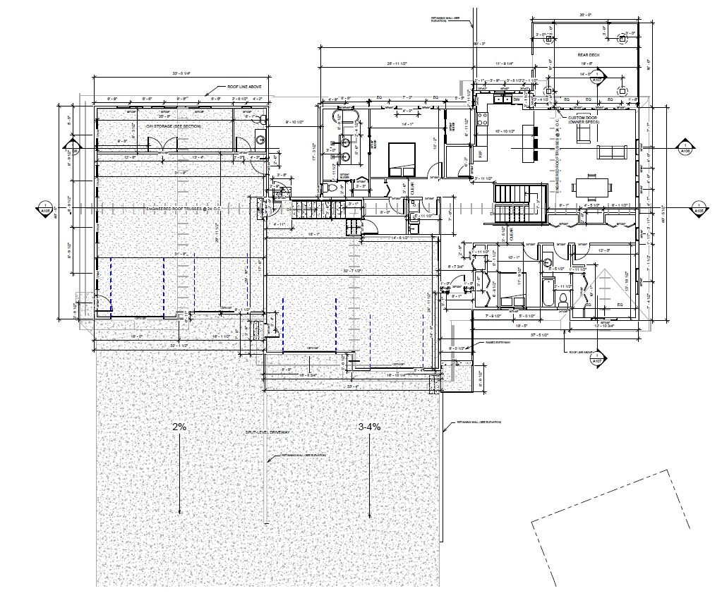
This project involved the design and coordination of a fully custom residential home for a first-time owner-builder. The client envisioned a modern, energy-efficient home featuring an Insulated Concrete Form (ICF) foundation, which introduced several unique design and permitting considerations.

Through close collaboration and proactive project management, we successfully navigated the local strata bylaws and City of Kamloops building permit process, ensuring compliance with all structural and energy efficiency requirements. The result was a smooth, coordinated build process that delivered a high-performance home tailored to the client’s vision — from concept to completion.

Previous
Previous

Interior & Exterior Renders

Next
Next

Other Services Offered